Rooms客室
- TOP
- 客室
和の静けさと洋の温もりが織りなす空間
Room Types
スタンダードツイン
34.1平米
シンプルで落ち着いた設えが、心にそっと寄り添います。
| 定員 | 1人〜2人 |
|---|---|
| 設備 | 禁煙・無料Wi-Fi接続・個別空調 バス、洗浄機付トイレ、テレビ、金庫、 湯沸かしポット、お茶セット、冷蔵庫 |
| ベッドタイプ | 2台 |
| 部屋数 | 8室 |
Floor Plan

スタンダードツイン ユニバーサルデザイン
30.7平米
すべての人に心地よい時間を。
機能と美が調和したやさしい客室。客室には段差が無く、車椅子の小回りが利く様レイアウトを工夫しております。
| 定員 | 1人〜2人 |
|---|---|
| 設備 | 禁煙・無料Wi-Fi接続・個別空調 バス、洗浄機付トイレ、テレビ、金庫、 湯沸かしポット、お茶セット、冷蔵庫 |
| ベッドタイプ | 2台 |
| 部屋数 | 1室 |
Floor Plan

スーペリアツイン
36.2平米
柔らかな光と静けさに包まれる空間。旅の余韻をやさしく抱きしめます。
| 定員 | 1人〜2人 |
|---|---|
| 設備 | 禁煙・無料Wi-Fi接続・個別空調 バス、洗浄機付トイレ、テレビ、金庫、 湯沸かしポット、お茶セット、冷蔵庫 |
| ベッドタイプ | 2台 |
| 部屋数 | 3室 |
Floor Plan

スーペリアツイン
withソファベッド
36.2平米
くつろぎのプラスワンが叶える、心地よい滞在。家族や友人との旅にぴったりのお部屋です。
| 定員 | 1人〜3人 |
|---|---|
| 設備 | 禁煙・無料Wi-Fi接続・個別空調 バス、洗浄機付トイレ、テレビ、金庫、 湯沸かしポット、お茶セット、冷蔵庫 |
| ベッドタイプ | 2台 |
| 部屋数 | 6室 |
Floor Plan

デラックスツイン
39.2平米
洗練された空間が、訪れるたびに新しい表情を見せてくれます。
※一部のお部屋の間取りが異なるので予めご了承くださいませ。
| 定員 | 1人〜2人 |
|---|---|
| 設備 | 禁煙・無料Wi-Fi接続・個別空調 バス、洗浄機付トイレ、テレビ、金庫、 湯沸かしポット、お茶セット、冷蔵庫 |
| ベッドタイプ | 2台 |
| 部屋数 | 14室 |
Floor Plan

デラックスキング
44平米
贅沢なキングサイズベッドで、ゆとりある静寂のひとときを。
| 定員 | 1人〜2人 |
|---|---|
| 設備 | 禁煙・無料Wi-Fi接続・個別空調 バス、洗浄機付トイレ、テレビ、金庫、 湯沸かしポット、お茶セット、冷蔵庫 |
| ベッドタイプ | キングサイズベッド1台 |
| 部屋数 | 1室 |
Floor Plan

デラックススイート
withソファベッド
44平米
重厚感とやわらかさが同居する、特別な滞在のためのスイート。
3名様でご宿泊は正ベッド2台、ソファベッド1台のご用意となります。
| 定員 | 1人〜3人 |
|---|---|
| 設備 | 禁煙・無料Wi-Fi接続・個別空調 バス、洗浄機付トイレ、テレビ、金庫、 湯沸かしポット、お茶セット、冷蔵庫 |
| ベッドタイプ | 2台+ソファベッド1台 |
| 部屋数 | 4室 |
Floor Plan

エグゼクティブツイン
withソファベッド
46平米
上質な設えが心を静かに包み込みます。
3名様でご宿泊の場合は正ベッド2台、ソファベッド1台のご利用となります。
| 定員 | 1人〜3人 |
|---|---|
| 設備 | 禁煙・無料Wi-Fi接続・個別空調 バス、洗浄機付トイレ、テレビ、金庫、 湯沸かしポット、お茶セット、冷蔵庫 |
| ベッドタイプ | 2台+ソファベッド1台 |
| 部屋数 | 4室 |
Floor Plan

エグゼクティブスイート
withソファベッド
46.1平米
贅沢な広がりと美意識が調和したスイートルーム。日常を忘れる特別なひとときを。
※一部客室の間取りが異なるのでご了承ください。
| 定員 | 1人〜3人 |
|---|---|
| 設備 | 禁煙・無料Wi-Fi接続・個別空調 バス、洗浄機付トイレ、テレビ、金庫、 湯沸かしポット、お茶セット、冷蔵庫 |
| ベッドタイプ | 2台+ソファベッド1台 |
| 部屋数 | 12室 |
Floor Plan

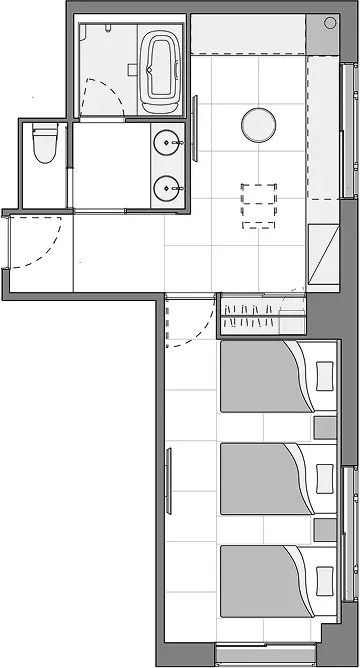
エグゼクティブトリプル
50.9平米
三人で過ごす、静けさと快適さに満ちた上質な時間。旅の記憶が深まります。
| 定員 | 1人〜3人 |
|---|---|
| 設備 | 禁煙・無料Wi-Fi接続・個別空調 バス、洗浄機付トイレ、テレビ、金庫、 湯沸かしポット、お茶セット、冷蔵庫 |
| ベッドタイプ | 3台 |
| 部屋数 | 4室 |
Floor Plan

シグネチャースパスイート
with サウナ
94.9平米
プライベートサウナでととのう、唯一無二の癒し空間。広々したリビングで気の向くままに特別なひとときを。
キングベッド1台、ソファベッド2台、計4名様で宿泊可能です。
| 定員 | 1人〜4人 |
|---|---|
| 設備 | 禁煙・無料Wi-Fi接続・個別空調 バス、洗浄機付トイレ、テレビ、金庫、 湯沸かしポット、お茶セット、冷蔵庫、 プライベートサウナ |
| ベッドタイプ | キングベッド1台+ソファベッド2台 |
| 部屋数 | 1室 |
Floor Plan

Amenities
旅のひとときを彩る、京のおもてなし。
お泊まりに必要なアメニティ用品や、お茶のセットをご用意しております。


- お茶セット
- 入浴剤
- ブラシ
- ドライヤー
- ハミガキセット
- タオル
- ボディーソープ
- カミソリ
- バスタオル
- シャンプー
- シャワーキャップ
- ナイトウェア
- コンディショナー
- くし
- スリッパ
